SERVICIOS DE MODELADO BIM
CONSTRUIMOS EL FUTURO DIGITAL DE TUS PROYECTOS
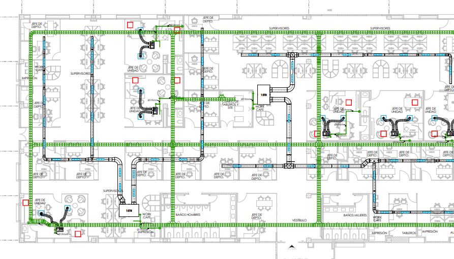
Ofrecemos soluciones de modelado BIM (Building Information Modeling) eficientes y colaborativas que te facilitarán la toma de decisiones en cada etapa del proyecto; lo que te permitirá reducir riesgos y errores, optimizar los recursos y procesos empleados durante la construcción y mejorar la comunicación entre los involucrados.